NIJMEGEN
€ 307.500
Malvert 6459
4 Kamers
1 Badkamers
3 Slaapkamers
96 m²
A
Onbekend
Bezichtiging aanvragen
Beschrijving
Heerlijk veel ruimte en vrij uitzicht: dat maakt dit appartement in de Malvert de moeite waard om te komen bekijken!
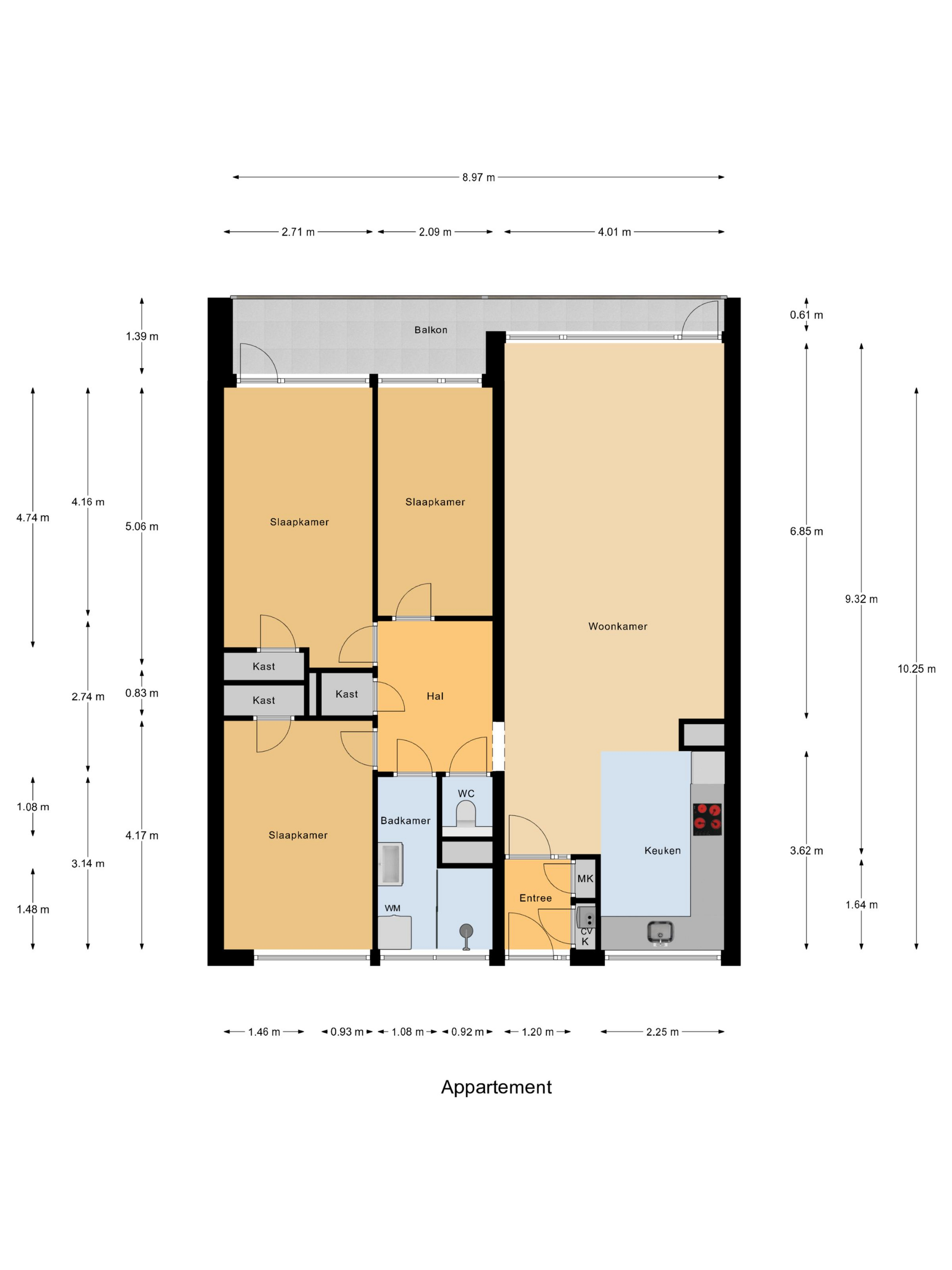
Dit goed gelegen 4-kamer appartement op de 2e verdieping heeft een groot privé balkon met vrij uitzicht, drie royale slaapkamers, een ruime open keuken, moderne badkamer en toilet en een privé-berging op de begane grond. Het appartementencomplex is gelegen in de rustige en groene parkachtige woonomgeving van de Malvert. In de nabijheid liggen verschillende voorzieningen zoals diverse supermarkten en winkels, scholen, het NS-station (Dukenburg), diverse uitvalswegen en op korte afstand natuurgebied 'De Hatertse Vennen'.
We gaan snel naar binnen om een kijkje te nemen...
Via de gemeenschappelijke (en afgesloten) entree met bellentableau en brievenbussen krijgen we toegang tot het trappenhuis, de lift en de bergingen.
We gaan naar de 2e verdieping en lopen eerst een klein tochtportaal in waar zich ook de meterkast en kast met cv-ketel bevinden. Daarna opent de woning zich meteen naar een opvallend ruime woonkamer met open keuken. De keuken is geplaatst aan de galerijkant; de woonkamer ligt aan de achterzijde en kijkt vrij weg over het groene park met bomen. De woonkamer is afgewerkt met een nette laminaatvloer en biedt volop plek voor zowel een comfortabele zithoek als een eethoek. Grote raampartijen trekken het daglicht naar binnen en zorgen voor een aangename sfeer. Via een deur komen we op het balkon welke zich over de gehele breedte van het appartement bevindt. Het balkon ligt op het westen dus je kunt hier heerlijk lang genieten van de zon.
De open keuken sluit direct aan op de woonkamer en is van alle gemakken voorzien. Je vindt hier onder andere een inductiekookplaat, afzuigkap, oven (2025), vaatwasser, koelkast en vriezer. Het grote raam boven het werkblad brengt extra licht de keuken in.
Aan de galerijzijde bevindt zich de modern ingerichte badkamer met een royale doucheruimte, een stijlvol wastafelmeubel met handige wandkast ernaast en de wasmachine-aansluiting. Prettig is dat het (zwevend) toilet separaat geplaatst, ook deze ruimte is modern en strak afgewerkt.
Naast de badkamer vinden we een slaapkamer met inbouwkast. Aan de achterzijde treffen we slaapkamer twee en drie aan; allemaal prima van formaat. Eén van de slaapkamers biedt toegang tot het balkon en heeft tevens een inbouwkast. Ook in de hal die deze ruimtes met elkaar verbindt, bevindt zich nog een royale inbouwkast met veel opbergruimte.
Terug op de begane grond kunnen we via een afgesloten deur naar de gang waar elk appartement zijn eigen af te sluiten berging heeft.
Bijzonderheden:
- Woonoppervlakte ca. 96 m2 / Berging ca. 7 m2 / Balkon ca. 9 m2 / Inhoud ca. 300 m3.
- Bouwjaar 1969.
- Lift aanwezig.
- Energielabel A (geldig tot 24-12-2035).
- Laminaatvloer in gehele appartement.
- Keuken dateert uit ca. 2018, badkamer en toilet 2021.
- Over de gehele breedte bevindt zich een zonnescherm (handmatig).
- Verwarmingsleidingen zijn in de vloer gelegd, geheel nieuwe meterkast geplaatst in 2021.
- Servicekosten Vereniging van Eigenaren: € 209,95 per maand (appartement en berging).
- Het is mogelijk een garagebox onder het appartementencomplex erbij te kopen (indien er één beschikbaar is of komt)
- Aanvaarding in overleg, kan echter snel.
Een verzorgd appartement met veel potentie, centraal gelegen en omringd door groen.
Enthousiast geworden? Bel ons dan, want we laten dit appartement graag aan je zien!
Dit goed gelegen 4-kamer appartement op de 2e verdieping heeft een groot privé balkon met vrij uitzicht, drie royale slaapkamers, een ruime open keuken, moderne badkamer en toilet en een privé-berging op de begane grond. Het appartementencomplex is gelegen in de rustige en groene parkachtige woonomgeving van de Malvert. In de nabijheid liggen verschillende voorzieningen zoals diverse supermarkten en winkels, scholen, het NS-station (Dukenburg), diverse uitvalswegen en op korte afstand natuurgebied 'De Hatertse Vennen'.
We gaan snel naar binnen om een kijkje te nemen...
Via de gemeenschappelijke (en afgesloten) entree met bellentableau en brievenbussen krijgen we toegang tot het trappenhuis, de lift en de bergingen.
We gaan naar de 2e verdieping en lopen eerst een klein tochtportaal in waar zich ook de meterkast en kast met cv-ketel bevinden. Daarna opent de woning zich meteen naar een opvallend ruime woonkamer met open keuken. De keuken is geplaatst aan de galerijkant; de woonkamer ligt aan de achterzijde en kijkt vrij weg over het groene park met bomen. De woonkamer is afgewerkt met een nette laminaatvloer en biedt volop plek voor zowel een comfortabele zithoek als een eethoek. Grote raampartijen trekken het daglicht naar binnen en zorgen voor een aangename sfeer. Via een deur komen we op het balkon welke zich over de gehele breedte van het appartement bevindt. Het balkon ligt op het westen dus je kunt hier heerlijk lang genieten van de zon.
De open keuken sluit direct aan op de woonkamer en is van alle gemakken voorzien. Je vindt hier onder andere een inductiekookplaat, afzuigkap, oven (2025), vaatwasser, koelkast en vriezer. Het grote raam boven het werkblad brengt extra licht de keuken in.
Aan de galerijzijde bevindt zich de modern ingerichte badkamer met een royale doucheruimte, een stijlvol wastafelmeubel met handige wandkast ernaast en de wasmachine-aansluiting. Prettig is dat het (zwevend) toilet separaat geplaatst, ook deze ruimte is modern en strak afgewerkt.
Naast de badkamer vinden we een slaapkamer met inbouwkast. Aan de achterzijde treffen we slaapkamer twee en drie aan; allemaal prima van formaat. Eén van de slaapkamers biedt toegang tot het balkon en heeft tevens een inbouwkast. Ook in de hal die deze ruimtes met elkaar verbindt, bevindt zich nog een royale inbouwkast met veel opbergruimte.
Terug op de begane grond kunnen we via een afgesloten deur naar de gang waar elk appartement zijn eigen af te sluiten berging heeft.
Bijzonderheden:
- Woonoppervlakte ca. 96 m2 / Berging ca. 7 m2 / Balkon ca. 9 m2 / Inhoud ca. 300 m3.
- Bouwjaar 1969.
- Lift aanwezig.
- Energielabel A (geldig tot 24-12-2035).
- Laminaatvloer in gehele appartement.
- Keuken dateert uit ca. 2018, badkamer en toilet 2021.
- Over de gehele breedte bevindt zich een zonnescherm (handmatig).
- Verwarmingsleidingen zijn in de vloer gelegd, geheel nieuwe meterkast geplaatst in 2021.
- Servicekosten Vereniging van Eigenaren: € 209,95 per maand (appartement en berging).
- Het is mogelijk een garagebox onder het appartementencomplex erbij te kopen (indien er één beschikbaar is of komt)
- Aanvaarding in overleg, kan echter snel.
Een verzorgd appartement met veel potentie, centraal gelegen en omringd door groen.
Enthousiast geworden? Bel ons dan, want we laten dit appartement graag aan je zien!
Beschrijving
Heerlijk veel ruimte en vrij uitzicht: dat maakt dit appartement in de Malvert de moeite waard om te komen bekijken!
Dit goed gelegen 4-kamer appartement op de 2e verdieping heeft een groot privé balkon met vrij uitzicht, drie royale slaapkamers, een ruime open keuken, moderne badkamer en toilet en een privé-berging op de begane grond. Het appartementencomplex is gelegen in de rustige en groene parkachtige woonomgeving van de Malvert. In de nabijheid liggen verschillende voorzieningen zoals diverse supermarkten en winkels, scholen, het NS-station (Dukenburg), diverse uitvalswegen en op korte afstand natuurgebied 'De Hatertse Vennen'.
We gaan snel naar binnen om een kijkje te nemen...
Via de gemeenschappelijke (en afgesloten) entree met bellentableau en brievenbussen krijgen we toegang tot het trappenhuis, de lift en de bergingen.
We gaan naar de 2e verdieping en lopen eerst een klein tochtportaal in waar zich ook de meterkast en kast met cv-ketel bevinden. Daarna opent de woning zich meteen naar een opvallend ruime woonkamer met open keuken. De keuken is geplaatst aan de galerijkant; de woonkamer ligt aan de achterzijde en kijkt vrij weg over het groene park met bomen. De woonkamer is afgewerkt met een nette laminaatvloer en biedt volop plek voor zowel een comfortabele zithoek als een eethoek. Grote raampartijen trekken het daglicht naar binnen en zorgen voor een aangename sfeer. Via een deur komen we op het balkon welke zich over de gehele breedte van het appartement bevindt. Het balkon ligt op het westen dus je kunt hier heerlijk lang genieten van de zon.
De open keuken sluit direct aan op de woonkamer en is van alle gemakken voorzien. Je vindt hier onder andere een inductiekookplaat, afzuigkap, oven (2025), vaatwasser, koelkast en vriezer. Het grote raam boven het werkblad brengt extra licht de keuken in.
Aan de galerijzijde bevindt zich de modern ingerichte badkamer met een royale doucheruimte, een stijlvol wastafelmeubel met handige wandkast ernaast en de wasmachine-aansluiting. Prettig is dat het (zwevend) toilet separaat geplaatst, ook deze ruimte is modern en strak afgewerkt.
Naast de badkamer vinden we een slaapkamer met inbouwkast. Aan de achterzijde treffen we slaapkamer twee en drie aan; allemaal prima van formaat. Eén van de slaapkamers biedt toegang tot het balkon en heeft tevens een inbouwkast. Ook in de hal die deze ruimtes met elkaar verbindt, bevindt zich nog een royale inbouwkast met veel opbergruimte.
Terug op de begane grond kunnen we via een afgesloten deur naar de gang waar elk appartement zijn eigen af te sluiten berging heeft.
Bijzonderheden:
- Woonoppervlakte ca. 96 m2 / Berging ca. 7 m2 / Balkon ca. 9 m2 / Inhoud ca. 300 m3.
- Bouwjaar 1969.
- Lift aanwezig.
- Energielabel A (geldig tot 24-12-2035).
- Laminaatvloer in gehele appartement.
- Keuken dateert uit ca. 2018, badkamer en toilet 2021.
- Over de gehele breedte bevindt zich een zonnescherm (handmatig).
- Verwarmingsleidingen zijn in de vloer gelegd, geheel nieuwe meterkast geplaatst in 2021.
- Servicekosten Vereniging van Eigenaren: € 209,95 per maand (appartement en berging).
- Het is mogelijk een garagebox onder het appartementencomplex erbij te kopen (indien er één beschikbaar is of komt)
- Aanvaarding in overleg, kan echter snel.
Een verzorgd appartement met veel potentie, centraal gelegen en omringd door groen.
Enthousiast geworden? Bel ons dan, want we laten dit appartement graag aan je zien!
Dit goed gelegen 4-kamer appartement op de 2e verdieping heeft een groot privé balkon met vrij uitzicht, drie royale slaapkamers, een ruime open keuken, moderne badkamer en toilet en een privé-berging op de begane grond. Het appartementencomplex is gelegen in de rustige en groene parkachtige woonomgeving van de Malvert. In de nabijheid liggen verschillende voorzieningen zoals diverse supermarkten en winkels, scholen, het NS-station (Dukenburg), diverse uitvalswegen en op korte afstand natuurgebied 'De Hatertse Vennen'.
We gaan snel naar binnen om een kijkje te nemen...
Via de gemeenschappelijke (en afgesloten) entree met bellentableau en brievenbussen krijgen we toegang tot het trappenhuis, de lift en de bergingen.
We gaan naar de 2e verdieping en lopen eerst een klein tochtportaal in waar zich ook de meterkast en kast met cv-ketel bevinden. Daarna opent de woning zich meteen naar een opvallend ruime woonkamer met open keuken. De keuken is geplaatst aan de galerijkant; de woonkamer ligt aan de achterzijde en kijkt vrij weg over het groene park met bomen. De woonkamer is afgewerkt met een nette laminaatvloer en biedt volop plek voor zowel een comfortabele zithoek als een eethoek. Grote raampartijen trekken het daglicht naar binnen en zorgen voor een aangename sfeer. Via een deur komen we op het balkon welke zich over de gehele breedte van het appartement bevindt. Het balkon ligt op het westen dus je kunt hier heerlijk lang genieten van de zon.
De open keuken sluit direct aan op de woonkamer en is van alle gemakken voorzien. Je vindt hier onder andere een inductiekookplaat, afzuigkap, oven (2025), vaatwasser, koelkast en vriezer. Het grote raam boven het werkblad brengt extra licht de keuken in.
Aan de galerijzijde bevindt zich de modern ingerichte badkamer met een royale doucheruimte, een stijlvol wastafelmeubel met handige wandkast ernaast en de wasmachine-aansluiting. Prettig is dat het (zwevend) toilet separaat geplaatst, ook deze ruimte is modern en strak afgewerkt.
Naast de badkamer vinden we een slaapkamer met inbouwkast. Aan de achterzijde treffen we slaapkamer twee en drie aan; allemaal prima van formaat. Eén van de slaapkamers biedt toegang tot het balkon en heeft tevens een inbouwkast. Ook in de hal die deze ruimtes met elkaar verbindt, bevindt zich nog een royale inbouwkast met veel opbergruimte.
Terug op de begane grond kunnen we via een afgesloten deur naar de gang waar elk appartement zijn eigen af te sluiten berging heeft.
Bijzonderheden:
- Woonoppervlakte ca. 96 m2 / Berging ca. 7 m2 / Balkon ca. 9 m2 / Inhoud ca. 300 m3.
- Bouwjaar 1969.
- Lift aanwezig.
- Energielabel A (geldig tot 24-12-2035).
- Laminaatvloer in gehele appartement.
- Keuken dateert uit ca. 2018, badkamer en toilet 2021.
- Over de gehele breedte bevindt zich een zonnescherm (handmatig).
- Verwarmingsleidingen zijn in de vloer gelegd, geheel nieuwe meterkast geplaatst in 2021.
- Servicekosten Vereniging van Eigenaren: € 209,95 per maand (appartement en berging).
- Het is mogelijk een garagebox onder het appartementencomplex erbij te kopen (indien er één beschikbaar is of komt)
- Aanvaarding in overleg, kan echter snel.
Een verzorgd appartement met veel potentie, centraal gelegen en omringd door groen.
Enthousiast geworden? Bel ons dan, want we laten dit appartement graag aan je zien!
powered by Friva | Lees ons Privacybeleid



































