MOLENHOEK
€ 625.000
De Sterreschans 50
7 Kamers
1 Badkamers
5 Slaapkamers
168 m²
A
Onbekend
Bezichtiging aanvragen
Beschrijving
Wonen in een jonge, kindvriendelijke wijk met alle voorzieningen binnen handbereik én de natuur van de Mookerhei, de Mookseplas en Plasmolen om de hoek? Deze jonge hoekwoning uit 2017 met karakteristieke dwarskap combineert stijl, comfort en hoogwaardige afwerking tot een ideaal gezinshuis. Ook de stedelijke voorzieningen in Nijmegen worden snel en goed bereikt.
Met ca. 168 m² woonoppervlak, vijf slaapkamers, een royale woonkamer met aansluitend de luxe keuken, een multifunctionele ruimte (speelkamer, thuiskantoor etc.) op de begane grond en een fraai aangelegde achtertuin op het zuidoosten groeit dit huis moeiteloos met een gezin mee.
Algemeen
• Woonoppervlakte: ca. 168 m²
• Perceel: 294 m²
• Bouwjaar: ca. 2017
• Energielabel A (geldig tot 02-11-2027)
• Isolatie: volledig geïsoleerd + 3 zonnepanelen
• Verwarming CV ketel (2017) en vloerverwarming op de begane grond
• Airco: twee slaapkamers op de zolder voorzien van airco (Daikin, 2024)
• Parkeren: ruimte voor 2 auto’s op de eigen oprit
• Aanvaarding: in overleg
Ruimte, luxe en een doordachte indeling
De begane grond opent met een ruime hal (met meterkast en toiletruimte) die toegang geeft tot de tuingerichte woonkamer. Deze biedt volop leefruimte, ondersteund door hoogwaardige afwerking, prettig daglicht en optimale toegang tot buiten. De woonkamer staat direct in verbinding met de royale, open leefkeuken: een lichte, luxe ruimte die uitnodigt om te koken, aan te schuiven en samen te genieten. Alle moderne kookgemakken zijn aanwezig, waardoor deze keuken het hart van het huis vormt.
De voormalige garage is grotendeels omgevormd tot een multifunctionele kamer: ideaal als speelkamer, thuiskantoor of atelier — een directe meerwaarde voor jonge gezinnen en thuiswerkers.
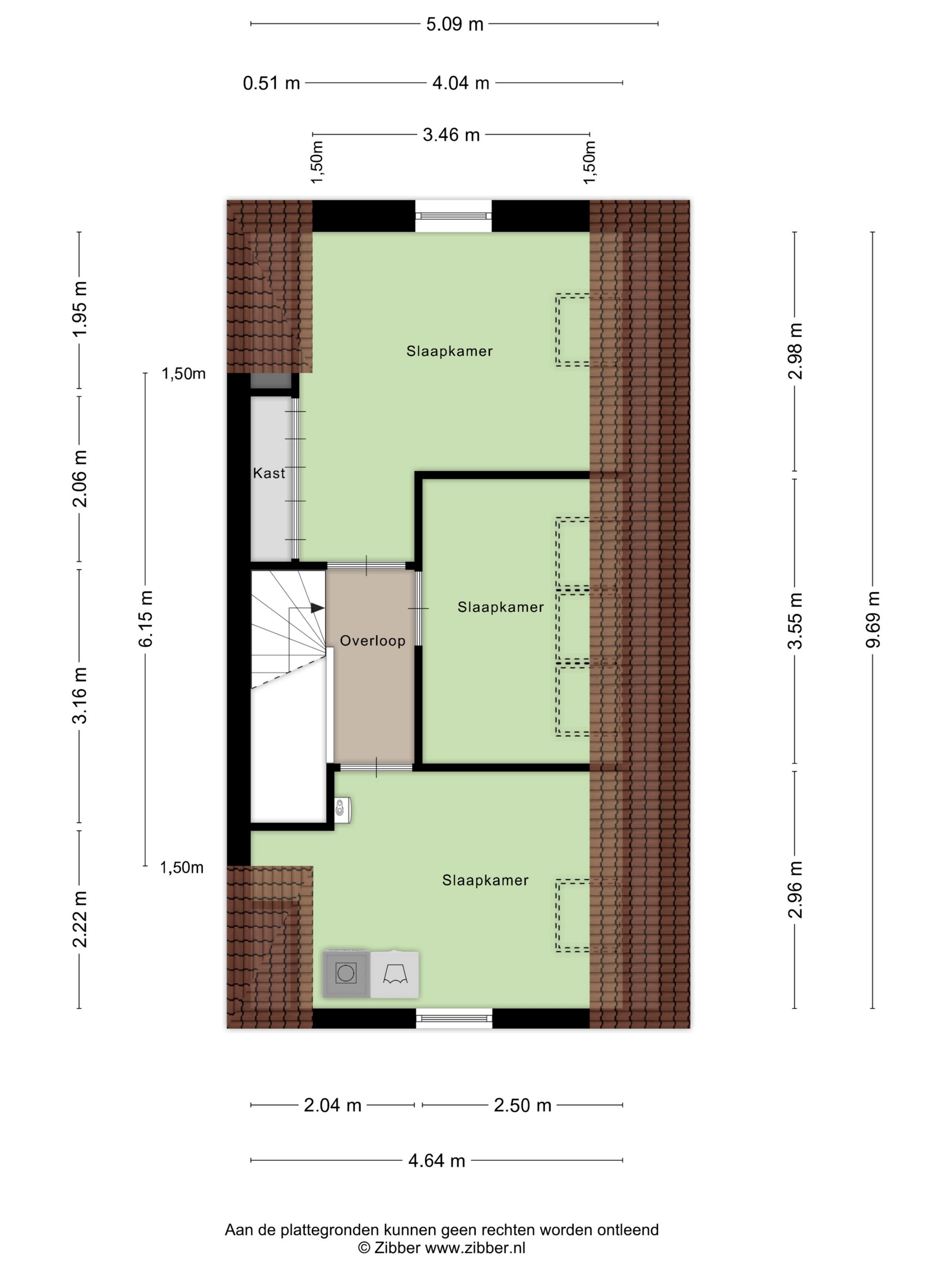
Vijf slaapkamers en een moderne badkamer
Met in totaal vijf ruime slaapkamers verspreid over de eerste (2) en tweede verdieping (3) kies je voor flexibiliteit en toekomstbestendigheid. Ruimte voor een groeiend gezin, logees, of juist extra werk- of hobbykamers: dit huis biedt het allemaal.
De moderne badkamer is stijlvol uitgevoerd en voorziet met een ligbad, douche, wastafelmeubel en wandcloset in alle comfort.
Tuin met heerlijke bezonning
De achtertuin is onder architectuur aangelegd en ligt op het zuidoosten — een fijne plek om de dag te beginnen én te eindigen. Met een berging en een overkapping heb je ook buiten voldoende functionele en sfeervolle ruimte.
Ligging: kindvriendelijk en uitstekend bereikbaar
De woning ligt in een jonge, rustige woonwijk waar kinderen veilig kunnen spelen; een speeltuin ligt nabij en voorzieningen zoals scholen en supermarkt bevinden zich op korte afstand.
Stedelijke voorzieningen in Nijmegen — ziekenhuizen, Radboud Universiteit, HAN en het centrum — zijn uitstekend bereikbaar. Ook de aansluiting op de A73 ligt dichtbij, waardoor woon-werkverkeer comfortabel blijft.
Daarnaast profiteer je van een prachtige natuuromgeving met bossen, vennen en recreatiegebieden op fietsafstand. Treinreizigers zijn binnen 10 minuten lopen bij station Mook/Molenhoek.
USP’s in één oogopslag
• Royale, tuingerichte woonkamer met volop daglicht
• Luxe leefkeuken met alle kookgemakken
• Voorzien van vijf slaapkamers
• Moderne badkamer met ligbad, douche, wastafelmeubel en wandcloset
• Maatwerk garderobekasten op de ouderslaapkamer
• Karakteristieke uitstraling door dwarskap en gebruikte materialen
• Fraai aangelegde achtertuin op het zuidoosten met berging en overkapping
• Multifunctionele ruimte op de begane grond (met aanbouw) en stalen taatsdeuren
• Parkeergelegenheid voor twee auto's op royale oprit
• Volledig geïsoleerd + 3 zonnepanelen
• Airconditioning aanwezig op de zolderverdieping
• Elektrisch zonnescherm
• Horren op de begane grond en eerste verdieping
• Gelegen in jonge, kindvriendelijke wijk nabij scholen, winkels en natuur
• Goede bereikbaarheid van Nijmegen en nabij uitvalswegen (A73)
Ben je enthousiast geworden? Neem dan snel contact op voor het plannen van een bezichtiging.
Met ca. 168 m² woonoppervlak, vijf slaapkamers, een royale woonkamer met aansluitend de luxe keuken, een multifunctionele ruimte (speelkamer, thuiskantoor etc.) op de begane grond en een fraai aangelegde achtertuin op het zuidoosten groeit dit huis moeiteloos met een gezin mee.
Algemeen
• Woonoppervlakte: ca. 168 m²
• Perceel: 294 m²
• Bouwjaar: ca. 2017
• Energielabel A (geldig tot 02-11-2027)
• Isolatie: volledig geïsoleerd + 3 zonnepanelen
• Verwarming CV ketel (2017) en vloerverwarming op de begane grond
• Airco: twee slaapkamers op de zolder voorzien van airco (Daikin, 2024)
• Parkeren: ruimte voor 2 auto’s op de eigen oprit
• Aanvaarding: in overleg
Ruimte, luxe en een doordachte indeling
De begane grond opent met een ruime hal (met meterkast en toiletruimte) die toegang geeft tot de tuingerichte woonkamer. Deze biedt volop leefruimte, ondersteund door hoogwaardige afwerking, prettig daglicht en optimale toegang tot buiten. De woonkamer staat direct in verbinding met de royale, open leefkeuken: een lichte, luxe ruimte die uitnodigt om te koken, aan te schuiven en samen te genieten. Alle moderne kookgemakken zijn aanwezig, waardoor deze keuken het hart van het huis vormt.
De voormalige garage is grotendeels omgevormd tot een multifunctionele kamer: ideaal als speelkamer, thuiskantoor of atelier — een directe meerwaarde voor jonge gezinnen en thuiswerkers.
Vijf slaapkamers en een moderne badkamer
Met in totaal vijf ruime slaapkamers verspreid over de eerste (2) en tweede verdieping (3) kies je voor flexibiliteit en toekomstbestendigheid. Ruimte voor een groeiend gezin, logees, of juist extra werk- of hobbykamers: dit huis biedt het allemaal.
De moderne badkamer is stijlvol uitgevoerd en voorziet met een ligbad, douche, wastafelmeubel en wandcloset in alle comfort.
Tuin met heerlijke bezonning
De achtertuin is onder architectuur aangelegd en ligt op het zuidoosten — een fijne plek om de dag te beginnen én te eindigen. Met een berging en een overkapping heb je ook buiten voldoende functionele en sfeervolle ruimte.
Ligging: kindvriendelijk en uitstekend bereikbaar
De woning ligt in een jonge, rustige woonwijk waar kinderen veilig kunnen spelen; een speeltuin ligt nabij en voorzieningen zoals scholen en supermarkt bevinden zich op korte afstand.
Stedelijke voorzieningen in Nijmegen — ziekenhuizen, Radboud Universiteit, HAN en het centrum — zijn uitstekend bereikbaar. Ook de aansluiting op de A73 ligt dichtbij, waardoor woon-werkverkeer comfortabel blijft.
Daarnaast profiteer je van een prachtige natuuromgeving met bossen, vennen en recreatiegebieden op fietsafstand. Treinreizigers zijn binnen 10 minuten lopen bij station Mook/Molenhoek.
USP’s in één oogopslag
• Royale, tuingerichte woonkamer met volop daglicht
• Luxe leefkeuken met alle kookgemakken
• Voorzien van vijf slaapkamers
• Moderne badkamer met ligbad, douche, wastafelmeubel en wandcloset
• Maatwerk garderobekasten op de ouderslaapkamer
• Karakteristieke uitstraling door dwarskap en gebruikte materialen
• Fraai aangelegde achtertuin op het zuidoosten met berging en overkapping
• Multifunctionele ruimte op de begane grond (met aanbouw) en stalen taatsdeuren
• Parkeergelegenheid voor twee auto's op royale oprit
• Volledig geïsoleerd + 3 zonnepanelen
• Airconditioning aanwezig op de zolderverdieping
• Elektrisch zonnescherm
• Horren op de begane grond en eerste verdieping
• Gelegen in jonge, kindvriendelijke wijk nabij scholen, winkels en natuur
• Goede bereikbaarheid van Nijmegen en nabij uitvalswegen (A73)
Ben je enthousiast geworden? Neem dan snel contact op voor het plannen van een bezichtiging.
Beschrijving
Wonen in een jonge, kindvriendelijke wijk met alle voorzieningen binnen handbereik én de natuur van de Mookerhei, de Mookseplas en Plasmolen om de hoek? Deze jonge hoekwoning uit 2017 met karakteristieke dwarskap combineert stijl, comfort en hoogwaardige afwerking tot een ideaal gezinshuis. Ook de stedelijke voorzieningen in Nijmegen worden snel en goed bereikt.
Met ca. 168 m² woonoppervlak, vijf slaapkamers, een royale woonkamer met aansluitend de luxe keuken, een multifunctionele ruimte (speelkamer, thuiskantoor etc.) op de begane grond en een fraai aangelegde achtertuin op het zuidoosten groeit dit huis moeiteloos met een gezin mee.
Algemeen
• Woonoppervlakte: ca. 168 m²
• Perceel: 294 m²
• Bouwjaar: ca. 2017
• Energielabel A (geldig tot 02-11-2027)
• Isolatie: volledig geïsoleerd + 3 zonnepanelen
• Verwarming CV ketel (2017) en vloerverwarming op de begane grond
• Airco: twee slaapkamers op de zolder voorzien van airco (Daikin, 2024)
• Parkeren: ruimte voor 2 auto’s op de eigen oprit
• Aanvaarding: in overleg
Ruimte, luxe en een doordachte indeling
De begane grond opent met een ruime hal (met meterkast en toiletruimte) die toegang geeft tot de tuingerichte woonkamer. Deze biedt volop leefruimte, ondersteund door hoogwaardige afwerking, prettig daglicht en optimale toegang tot buiten. De woonkamer staat direct in verbinding met de royale, open leefkeuken: een lichte, luxe ruimte die uitnodigt om te koken, aan te schuiven en samen te genieten. Alle moderne kookgemakken zijn aanwezig, waardoor deze keuken het hart van het huis vormt.
De voormalige garage is grotendeels omgevormd tot een multifunctionele kamer: ideaal als speelkamer, thuiskantoor of atelier — een directe meerwaarde voor jonge gezinnen en thuiswerkers.
Vijf slaapkamers en een moderne badkamer
Met in totaal vijf ruime slaapkamers verspreid over de eerste (2) en tweede verdieping (3) kies je voor flexibiliteit en toekomstbestendigheid. Ruimte voor een groeiend gezin, logees, of juist extra werk- of hobbykamers: dit huis biedt het allemaal.
De moderne badkamer is stijlvol uitgevoerd en voorziet met een ligbad, douche, wastafelmeubel en wandcloset in alle comfort.
Tuin met heerlijke bezonning
De achtertuin is onder architectuur aangelegd en ligt op het zuidoosten — een fijne plek om de dag te beginnen én te eindigen. Met een berging en een overkapping heb je ook buiten voldoende functionele en sfeervolle ruimte.
Ligging: kindvriendelijk en uitstekend bereikbaar
De woning ligt in een jonge, rustige woonwijk waar kinderen veilig kunnen spelen; een speeltuin ligt nabij en voorzieningen zoals scholen en supermarkt bevinden zich op korte afstand.
Stedelijke voorzieningen in Nijmegen — ziekenhuizen, Radboud Universiteit, HAN en het centrum — zijn uitstekend bereikbaar. Ook de aansluiting op de A73 ligt dichtbij, waardoor woon-werkverkeer comfortabel blijft.
Daarnaast profiteer je van een prachtige natuuromgeving met bossen, vennen en recreatiegebieden op fietsafstand. Treinreizigers zijn binnen 10 minuten lopen bij station Mook/Molenhoek.
USP’s in één oogopslag
• Royale, tuingerichte woonkamer met volop daglicht
• Luxe leefkeuken met alle kookgemakken
• Voorzien van vijf slaapkamers
• Moderne badkamer met ligbad, douche, wastafelmeubel en wandcloset
• Maatwerk garderobekasten op de ouderslaapkamer
• Karakteristieke uitstraling door dwarskap en gebruikte materialen
• Fraai aangelegde achtertuin op het zuidoosten met berging en overkapping
• Multifunctionele ruimte op de begane grond (met aanbouw) en stalen taatsdeuren
• Parkeergelegenheid voor twee auto's op royale oprit
• Volledig geïsoleerd + 3 zonnepanelen
• Airconditioning aanwezig op de zolderverdieping
• Elektrisch zonnescherm
• Horren op de begane grond en eerste verdieping
• Gelegen in jonge, kindvriendelijke wijk nabij scholen, winkels en natuur
• Goede bereikbaarheid van Nijmegen en nabij uitvalswegen (A73)
Ben je enthousiast geworden? Neem dan snel contact op voor het plannen van een bezichtiging.
Met ca. 168 m² woonoppervlak, vijf slaapkamers, een royale woonkamer met aansluitend de luxe keuken, een multifunctionele ruimte (speelkamer, thuiskantoor etc.) op de begane grond en een fraai aangelegde achtertuin op het zuidoosten groeit dit huis moeiteloos met een gezin mee.
Algemeen
• Woonoppervlakte: ca. 168 m²
• Perceel: 294 m²
• Bouwjaar: ca. 2017
• Energielabel A (geldig tot 02-11-2027)
• Isolatie: volledig geïsoleerd + 3 zonnepanelen
• Verwarming CV ketel (2017) en vloerverwarming op de begane grond
• Airco: twee slaapkamers op de zolder voorzien van airco (Daikin, 2024)
• Parkeren: ruimte voor 2 auto’s op de eigen oprit
• Aanvaarding: in overleg
Ruimte, luxe en een doordachte indeling
De begane grond opent met een ruime hal (met meterkast en toiletruimte) die toegang geeft tot de tuingerichte woonkamer. Deze biedt volop leefruimte, ondersteund door hoogwaardige afwerking, prettig daglicht en optimale toegang tot buiten. De woonkamer staat direct in verbinding met de royale, open leefkeuken: een lichte, luxe ruimte die uitnodigt om te koken, aan te schuiven en samen te genieten. Alle moderne kookgemakken zijn aanwezig, waardoor deze keuken het hart van het huis vormt.
De voormalige garage is grotendeels omgevormd tot een multifunctionele kamer: ideaal als speelkamer, thuiskantoor of atelier — een directe meerwaarde voor jonge gezinnen en thuiswerkers.
Vijf slaapkamers en een moderne badkamer
Met in totaal vijf ruime slaapkamers verspreid over de eerste (2) en tweede verdieping (3) kies je voor flexibiliteit en toekomstbestendigheid. Ruimte voor een groeiend gezin, logees, of juist extra werk- of hobbykamers: dit huis biedt het allemaal.
De moderne badkamer is stijlvol uitgevoerd en voorziet met een ligbad, douche, wastafelmeubel en wandcloset in alle comfort.
Tuin met heerlijke bezonning
De achtertuin is onder architectuur aangelegd en ligt op het zuidoosten — een fijne plek om de dag te beginnen én te eindigen. Met een berging en een overkapping heb je ook buiten voldoende functionele en sfeervolle ruimte.
Ligging: kindvriendelijk en uitstekend bereikbaar
De woning ligt in een jonge, rustige woonwijk waar kinderen veilig kunnen spelen; een speeltuin ligt nabij en voorzieningen zoals scholen en supermarkt bevinden zich op korte afstand.
Stedelijke voorzieningen in Nijmegen — ziekenhuizen, Radboud Universiteit, HAN en het centrum — zijn uitstekend bereikbaar. Ook de aansluiting op de A73 ligt dichtbij, waardoor woon-werkverkeer comfortabel blijft.
Daarnaast profiteer je van een prachtige natuuromgeving met bossen, vennen en recreatiegebieden op fietsafstand. Treinreizigers zijn binnen 10 minuten lopen bij station Mook/Molenhoek.
USP’s in één oogopslag
• Royale, tuingerichte woonkamer met volop daglicht
• Luxe leefkeuken met alle kookgemakken
• Voorzien van vijf slaapkamers
• Moderne badkamer met ligbad, douche, wastafelmeubel en wandcloset
• Maatwerk garderobekasten op de ouderslaapkamer
• Karakteristieke uitstraling door dwarskap en gebruikte materialen
• Fraai aangelegde achtertuin op het zuidoosten met berging en overkapping
• Multifunctionele ruimte op de begane grond (met aanbouw) en stalen taatsdeuren
• Parkeergelegenheid voor twee auto's op royale oprit
• Volledig geïsoleerd + 3 zonnepanelen
• Airconditioning aanwezig op de zolderverdieping
• Elektrisch zonnescherm
• Horren op de begane grond en eerste verdieping
• Gelegen in jonge, kindvriendelijke wijk nabij scholen, winkels en natuur
• Goede bereikbaarheid van Nijmegen en nabij uitvalswegen (A73)
Ben je enthousiast geworden? Neem dan snel contact op voor het plannen van een bezichtiging.
powered by Friva | Lees ons Privacybeleid



















































