NIJMEGEN
€ 315.000
Venusstraat 6
3 Kamers
1 Badkamers
2 Slaapkamers
68 m²
F
Onbekend
Bezichtiging aanvragen
Beschrijving
Op zoek naar een verzorgd appartement met twee slaapkamers, een ruime woonkamer en een rustige ligging met vrij uitzicht op groen? Dan verdient Venusstraat 6 in Nijmegen zeker je aandacht. Het appartement ligt op de eerste verdieping van een verzorgd portiekcomplex uit 1960 en biedt een prettige combinatie van licht, comfort en een rustige woonomgeving. De indeling is praktisch en evenwichtig, met een ruime woonkamer en twee volwaardige slaapkamers. Vanuit de woning zijn twee balkons bereikbaar, beide met vrij uitzicht op het park en volop rust en privacy. Het gehele appartement is voorzien van dubbele beglazing glas en recent is een nieuwe cv ketel geplaatst. Als extra pluspunt is er een uitzonderlijk ruime berging van circa 18 m² met elektra, wat het geheel tot een compleet en comfortabel geheel maakt.
De buurt
De Venusstraat is gelegen in een rustige en groene woonwijk in Nijmegen West. De omgeving kenmerkt zich door een ruim opgezette structuur, veel openbaar groen en een ontspannen woonklimaat. Het park aan de voorzijde zorgt voor vrij uitzicht en een open gevoel. In de directe nabijheid bevinden zich diverse winkels voor de dagelijkse boodschappen, scholen en openbaar vervoer. Ook sportvoorzieningen en recreatiemogelijkheden zijn goed vertegenwoordigd in de omgeving. Het stadscentrum van Nijmegen is eenvoudig per fiets bereikbaar en de uitvalswegen richting A73 en A50 liggen op korte afstand. Een locatie die rust en bereikbaarheid op een evenwichtige manier combineert.
Kenmerken
- Woonoppervlakte circa 68 m²
- Inhoud circa 241 m³
- Gelegen op de eerste verdieping
- Ruime woonkamer van circa 30 m²
- Twee slaapkamers
- Twee balkons met vrij uitzicht op het park
- Gehele appartement voorzien van HR++ glas
- Cv ketel Nefit combiketel uit 2025, eigendom
- Zeer ruime berging van circa 18 m² voorzien van elektra
- Bouwjaar 1960
- Maandelijkse VvE bijdrage € 186
- Aanvaarding in overleg
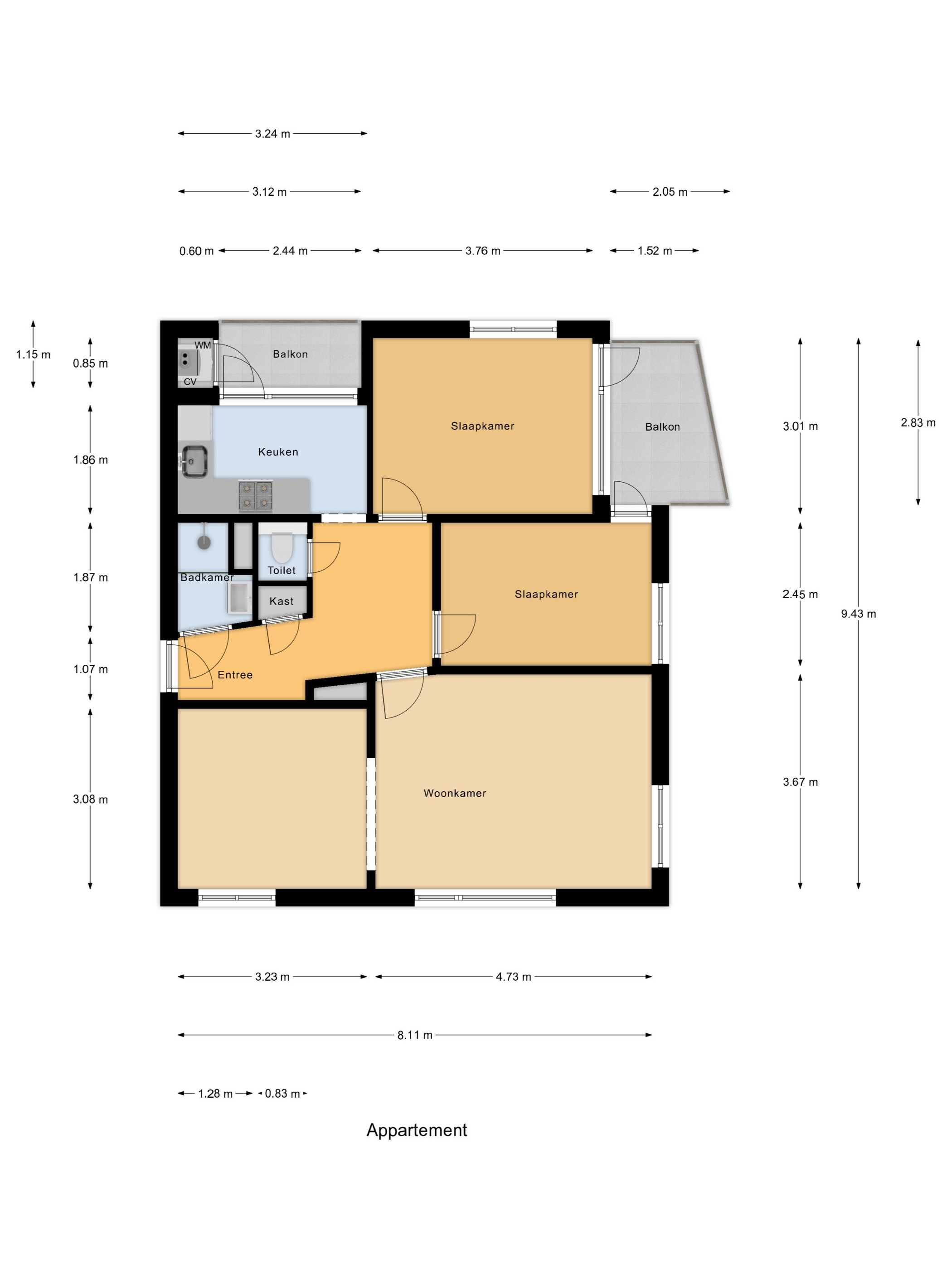
Indeling
Via de centrale entree van het complex bereik je het appartement op de eerste verdieping. De hal biedt toegang tot alle vertrekken en zorgt voor een overzichtelijke indeling. De woonkamer is ruim van opzet en prettig licht dankzij de hoekligging, met vrij uitzicht op het park aan de voorzijde.
De keuken is functioneel ingericht en geeft toegang tot het balkon, eveneens met vrij uitzicht op groen. Beide slaapkamers zijn van goed formaat en praktisch in te delen. Vanuit beide slaapkamers heb je toegang tot het tweede balkon. De badkamer is voorzien van een douche en wastafel. Het toilet is separaat en bereikbaar vanuit de hal.
In het souterrain bevindt zich een opvallend ruime berging van circa 18 m², voorzien van elektra, geschikt voor fietsen, opslag of hobbygebruik.
Een keurig appartement met een prettige ligging, veel licht, vrij uitzicht en praktische extra ruimte. Neem gerust contact op voor een bezichtiging.
De buurt
De Venusstraat is gelegen in een rustige en groene woonwijk in Nijmegen West. De omgeving kenmerkt zich door een ruim opgezette structuur, veel openbaar groen en een ontspannen woonklimaat. Het park aan de voorzijde zorgt voor vrij uitzicht en een open gevoel. In de directe nabijheid bevinden zich diverse winkels voor de dagelijkse boodschappen, scholen en openbaar vervoer. Ook sportvoorzieningen en recreatiemogelijkheden zijn goed vertegenwoordigd in de omgeving. Het stadscentrum van Nijmegen is eenvoudig per fiets bereikbaar en de uitvalswegen richting A73 en A50 liggen op korte afstand. Een locatie die rust en bereikbaarheid op een evenwichtige manier combineert.
Kenmerken
- Woonoppervlakte circa 68 m²
- Inhoud circa 241 m³
- Gelegen op de eerste verdieping
- Ruime woonkamer van circa 30 m²
- Twee slaapkamers
- Twee balkons met vrij uitzicht op het park
- Gehele appartement voorzien van HR++ glas
- Cv ketel Nefit combiketel uit 2025, eigendom
- Zeer ruime berging van circa 18 m² voorzien van elektra
- Bouwjaar 1960
- Maandelijkse VvE bijdrage € 186
- Aanvaarding in overleg
Indeling
Via de centrale entree van het complex bereik je het appartement op de eerste verdieping. De hal biedt toegang tot alle vertrekken en zorgt voor een overzichtelijke indeling. De woonkamer is ruim van opzet en prettig licht dankzij de hoekligging, met vrij uitzicht op het park aan de voorzijde.
De keuken is functioneel ingericht en geeft toegang tot het balkon, eveneens met vrij uitzicht op groen. Beide slaapkamers zijn van goed formaat en praktisch in te delen. Vanuit beide slaapkamers heb je toegang tot het tweede balkon. De badkamer is voorzien van een douche en wastafel. Het toilet is separaat en bereikbaar vanuit de hal.
In het souterrain bevindt zich een opvallend ruime berging van circa 18 m², voorzien van elektra, geschikt voor fietsen, opslag of hobbygebruik.
Een keurig appartement met een prettige ligging, veel licht, vrij uitzicht en praktische extra ruimte. Neem gerust contact op voor een bezichtiging.
Beschrijving
Op zoek naar een verzorgd appartement met twee slaapkamers, een ruime woonkamer en een rustige ligging met vrij uitzicht op groen? Dan verdient Venusstraat 6 in Nijmegen zeker je aandacht. Het appartement ligt op de eerste verdieping van een verzorgd portiekcomplex uit 1960 en biedt een prettige combinatie van licht, comfort en een rustige woonomgeving. De indeling is praktisch en evenwichtig, met een ruime woonkamer en twee volwaardige slaapkamers. Vanuit de woning zijn twee balkons bereikbaar, beide met vrij uitzicht op het park en volop rust en privacy. Het gehele appartement is voorzien van dubbele beglazing glas en recent is een nieuwe cv ketel geplaatst. Als extra pluspunt is er een uitzonderlijk ruime berging van circa 18 m² met elektra, wat het geheel tot een compleet en comfortabel geheel maakt.
De buurt
De Venusstraat is gelegen in een rustige en groene woonwijk in Nijmegen West. De omgeving kenmerkt zich door een ruim opgezette structuur, veel openbaar groen en een ontspannen woonklimaat. Het park aan de voorzijde zorgt voor vrij uitzicht en een open gevoel. In de directe nabijheid bevinden zich diverse winkels voor de dagelijkse boodschappen, scholen en openbaar vervoer. Ook sportvoorzieningen en recreatiemogelijkheden zijn goed vertegenwoordigd in de omgeving. Het stadscentrum van Nijmegen is eenvoudig per fiets bereikbaar en de uitvalswegen richting A73 en A50 liggen op korte afstand. Een locatie die rust en bereikbaarheid op een evenwichtige manier combineert.
Kenmerken
- Woonoppervlakte circa 68 m²
- Inhoud circa 241 m³
- Gelegen op de eerste verdieping
- Ruime woonkamer van circa 30 m²
- Twee slaapkamers
- Twee balkons met vrij uitzicht op het park
- Gehele appartement voorzien van HR++ glas
- Cv ketel Nefit combiketel uit 2025, eigendom
- Zeer ruime berging van circa 18 m² voorzien van elektra
- Bouwjaar 1960
- Maandelijkse VvE bijdrage € 186
- Aanvaarding in overleg
Indeling
Via de centrale entree van het complex bereik je het appartement op de eerste verdieping. De hal biedt toegang tot alle vertrekken en zorgt voor een overzichtelijke indeling. De woonkamer is ruim van opzet en prettig licht dankzij de hoekligging, met vrij uitzicht op het park aan de voorzijde.
De keuken is functioneel ingericht en geeft toegang tot het balkon, eveneens met vrij uitzicht op groen. Beide slaapkamers zijn van goed formaat en praktisch in te delen. Vanuit beide slaapkamers heb je toegang tot het tweede balkon. De badkamer is voorzien van een douche en wastafel. Het toilet is separaat en bereikbaar vanuit de hal.
In het souterrain bevindt zich een opvallend ruime berging van circa 18 m², voorzien van elektra, geschikt voor fietsen, opslag of hobbygebruik.
Een keurig appartement met een prettige ligging, veel licht, vrij uitzicht en praktische extra ruimte. Neem gerust contact op voor een bezichtiging.
De buurt
De Venusstraat is gelegen in een rustige en groene woonwijk in Nijmegen West. De omgeving kenmerkt zich door een ruim opgezette structuur, veel openbaar groen en een ontspannen woonklimaat. Het park aan de voorzijde zorgt voor vrij uitzicht en een open gevoel. In de directe nabijheid bevinden zich diverse winkels voor de dagelijkse boodschappen, scholen en openbaar vervoer. Ook sportvoorzieningen en recreatiemogelijkheden zijn goed vertegenwoordigd in de omgeving. Het stadscentrum van Nijmegen is eenvoudig per fiets bereikbaar en de uitvalswegen richting A73 en A50 liggen op korte afstand. Een locatie die rust en bereikbaarheid op een evenwichtige manier combineert.
Kenmerken
- Woonoppervlakte circa 68 m²
- Inhoud circa 241 m³
- Gelegen op de eerste verdieping
- Ruime woonkamer van circa 30 m²
- Twee slaapkamers
- Twee balkons met vrij uitzicht op het park
- Gehele appartement voorzien van HR++ glas
- Cv ketel Nefit combiketel uit 2025, eigendom
- Zeer ruime berging van circa 18 m² voorzien van elektra
- Bouwjaar 1960
- Maandelijkse VvE bijdrage € 186
- Aanvaarding in overleg
Indeling
Via de centrale entree van het complex bereik je het appartement op de eerste verdieping. De hal biedt toegang tot alle vertrekken en zorgt voor een overzichtelijke indeling. De woonkamer is ruim van opzet en prettig licht dankzij de hoekligging, met vrij uitzicht op het park aan de voorzijde.
De keuken is functioneel ingericht en geeft toegang tot het balkon, eveneens met vrij uitzicht op groen. Beide slaapkamers zijn van goed formaat en praktisch in te delen. Vanuit beide slaapkamers heb je toegang tot het tweede balkon. De badkamer is voorzien van een douche en wastafel. Het toilet is separaat en bereikbaar vanuit de hal.
In het souterrain bevindt zich een opvallend ruime berging van circa 18 m², voorzien van elektra, geschikt voor fietsen, opslag of hobbygebruik.
Een keurig appartement met een prettige ligging, veel licht, vrij uitzicht en praktische extra ruimte. Neem gerust contact op voor een bezichtiging.
powered by Friva | Lees ons Privacybeleid









































