NIJMEGEN
€ 350.000
Meijhorst 6181
4 Kamers
1 Badkamers
3 Slaapkamers
129 m²
C
Achtertuin
Bezichtiging plannen
Beschrijving
Deze nette eengezinswoning aan de Meijhorst biedt volop wooncomfort met 3 grote slaapkamers, een ruime zolder en een zonnige achtertuin op het zuiden. De woning beschikt over een eigen carport en voldoende parkeergelegenheid op eigen terrein. De woonkamer is ruim en licht, ideaal voor een royale zithoek en een eettafel. De slaapkamer aan de achterzijde heeft een balkon, waardoor er ook op de eerste verdieping van de zon genoten kan worden.
waar
De woning is gelegen in de wijk Meijhorst, aan een rustige en overzichtelijke straat met veel groen. In de directe omgeving bevinden zich speelplekken, wandelroutes en plantsoenen. Basisscholen, buurtwinkels en openbaar vervoer liggen op korte afstand. De wijk is ruim opgezet en wordt voornamelijk bewoond door gezinnen, wat zorgt voor een prettige en rustige woonomgeving. Uitvalswegen richting Nijmegen en omliggende plaatsen zijn goed bereikbaar. Ook sportvoorzieningen, recreatiegebieden en het centrum van Nijmegen zijn eenvoudig te bereiken.
Kenmerken:
- Woonoppervlakte circa 129 m²
- Perceeloppervlakte circa 139 m²
- Inhoud circa 424 m³
- Bouwjaar 1975
- Energielabel C met einddatum 12 januari 2036.
- Verwarming en warm water via een Atag cv ketel uit 2023 in eigendom.
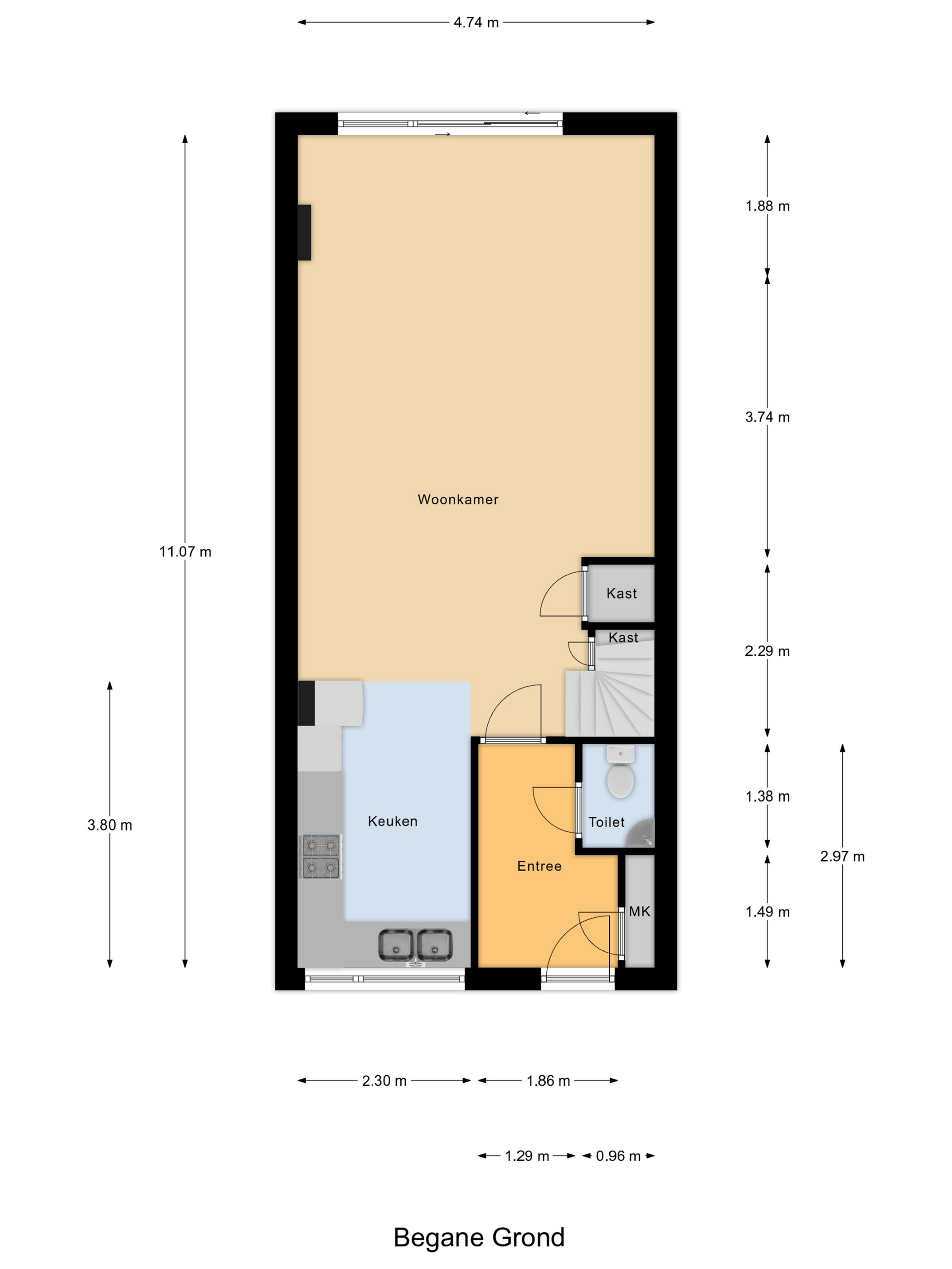
Begane grond
Via de hal komen we de woning binnen. Hier bevinden zich het toilet, de meterkast en toegang tot de woonkamer. De woonkamer heeft een oppervlakte van circa 37 m² en biedt voldoende ruimte voor zowel een zitgedeelte als een eethoek. Door de indeling is de ruimte goed te benutten en is er prettig daglicht aanwezig. Vanuit de woonkamer is de achtertuin bereikbaar.
De achtertuin is gelegen op het zuiden en heeft een oppervlakte van circa 44 m². Door de ligging is er veel zon gedurende de dag. De tuin is bereikbaar via een achterom en beschikt aan de voorzijde over een vrijstaande stenen berging van circa 6 m², ideaal voor fietsen en extra opslag.
Eerste verdieping
Op de eerste verdieping komen we uit op de overloop die toegang biedt tot 2 slaapkamers en de badkamer. De slaapkamers hebben een prettig formaat en zijn functioneel ingedeeld. De slaapkamer aan de achterzijde heeft toegang tot het balkon, gelegen op het zuiden. De badkamer is compleet uitgevoerd met een douche, ligbad, wastafel en toilet.
Tweede verdieping
Via een vaste trap bereiken we de tweede verdieping. Hier bevindt zich de derde slaapkamer. Daarnaast is er extra bergruimte aanwezig, waardoor deze verdieping ook praktisch is voor opslag of een werkplek aan huis.
Buitenruimte
Aan de voorzijde is er een voortuin. Parkeren kan openbaar en op eigen terrein door middel van de carport.
Kortom een ruime en praktisch ingedeelde woning op een rustige plek in Nijmegen. Een bezichtiging geeft het beste beeld van de mogelijkheden. Neem gerust contact op om een afspraak in te plannen.
waar
De woning is gelegen in de wijk Meijhorst, aan een rustige en overzichtelijke straat met veel groen. In de directe omgeving bevinden zich speelplekken, wandelroutes en plantsoenen. Basisscholen, buurtwinkels en openbaar vervoer liggen op korte afstand. De wijk is ruim opgezet en wordt voornamelijk bewoond door gezinnen, wat zorgt voor een prettige en rustige woonomgeving. Uitvalswegen richting Nijmegen en omliggende plaatsen zijn goed bereikbaar. Ook sportvoorzieningen, recreatiegebieden en het centrum van Nijmegen zijn eenvoudig te bereiken.
Kenmerken:
- Woonoppervlakte circa 129 m²
- Perceeloppervlakte circa 139 m²
- Inhoud circa 424 m³
- Bouwjaar 1975
- Energielabel C met einddatum 12 januari 2036.
- Verwarming en warm water via een Atag cv ketel uit 2023 in eigendom.
Begane grond
Via de hal komen we de woning binnen. Hier bevinden zich het toilet, de meterkast en toegang tot de woonkamer. De woonkamer heeft een oppervlakte van circa 37 m² en biedt voldoende ruimte voor zowel een zitgedeelte als een eethoek. Door de indeling is de ruimte goed te benutten en is er prettig daglicht aanwezig. Vanuit de woonkamer is de achtertuin bereikbaar.
De achtertuin is gelegen op het zuiden en heeft een oppervlakte van circa 44 m². Door de ligging is er veel zon gedurende de dag. De tuin is bereikbaar via een achterom en beschikt aan de voorzijde over een vrijstaande stenen berging van circa 6 m², ideaal voor fietsen en extra opslag.
Eerste verdieping
Op de eerste verdieping komen we uit op de overloop die toegang biedt tot 2 slaapkamers en de badkamer. De slaapkamers hebben een prettig formaat en zijn functioneel ingedeeld. De slaapkamer aan de achterzijde heeft toegang tot het balkon, gelegen op het zuiden. De badkamer is compleet uitgevoerd met een douche, ligbad, wastafel en toilet.
Tweede verdieping
Via een vaste trap bereiken we de tweede verdieping. Hier bevindt zich de derde slaapkamer. Daarnaast is er extra bergruimte aanwezig, waardoor deze verdieping ook praktisch is voor opslag of een werkplek aan huis.
Buitenruimte
Aan de voorzijde is er een voortuin. Parkeren kan openbaar en op eigen terrein door middel van de carport.
Kortom een ruime en praktisch ingedeelde woning op een rustige plek in Nijmegen. Een bezichtiging geeft het beste beeld van de mogelijkheden. Neem gerust contact op om een afspraak in te plannen.
Beschrijving
Deze nette eengezinswoning aan de Meijhorst biedt volop wooncomfort met 3 grote slaapkamers, een ruime zolder en een zonnige achtertuin op het zuiden. De woning beschikt over een eigen carport en voldoende parkeergelegenheid op eigen terrein. De woonkamer is ruim en licht, ideaal voor een royale zithoek en een eettafel. De slaapkamer aan de achterzijde heeft een balkon, waardoor er ook op de eerste verdieping van de zon genoten kan worden.
waar
De woning is gelegen in de wijk Meijhorst, aan een rustige en overzichtelijke straat met veel groen. In de directe omgeving bevinden zich speelplekken, wandelroutes en plantsoenen. Basisscholen, buurtwinkels en openbaar vervoer liggen op korte afstand. De wijk is ruim opgezet en wordt voornamelijk bewoond door gezinnen, wat zorgt voor een prettige en rustige woonomgeving. Uitvalswegen richting Nijmegen en omliggende plaatsen zijn goed bereikbaar. Ook sportvoorzieningen, recreatiegebieden en het centrum van Nijmegen zijn eenvoudig te bereiken.
Kenmerken:
- Woonoppervlakte circa 129 m²
- Perceeloppervlakte circa 139 m²
- Inhoud circa 424 m³
- Bouwjaar 1975
- Energielabel C met einddatum 12 januari 2036.
- Verwarming en warm water via een Atag cv ketel uit 2023 in eigendom.
Begane grond
Via de hal komen we de woning binnen. Hier bevinden zich het toilet, de meterkast en toegang tot de woonkamer. De woonkamer heeft een oppervlakte van circa 37 m² en biedt voldoende ruimte voor zowel een zitgedeelte als een eethoek. Door de indeling is de ruimte goed te benutten en is er prettig daglicht aanwezig. Vanuit de woonkamer is de achtertuin bereikbaar.
De achtertuin is gelegen op het zuiden en heeft een oppervlakte van circa 44 m². Door de ligging is er veel zon gedurende de dag. De tuin is bereikbaar via een achterom en beschikt aan de voorzijde over een vrijstaande stenen berging van circa 6 m², ideaal voor fietsen en extra opslag.
Eerste verdieping
Op de eerste verdieping komen we uit op de overloop die toegang biedt tot 2 slaapkamers en de badkamer. De slaapkamers hebben een prettig formaat en zijn functioneel ingedeeld. De slaapkamer aan de achterzijde heeft toegang tot het balkon, gelegen op het zuiden. De badkamer is compleet uitgevoerd met een douche, ligbad, wastafel en toilet.
Tweede verdieping
Via een vaste trap bereiken we de tweede verdieping. Hier bevindt zich de derde slaapkamer. Daarnaast is er extra bergruimte aanwezig, waardoor deze verdieping ook praktisch is voor opslag of een werkplek aan huis.
Buitenruimte
Aan de voorzijde is er een voortuin. Parkeren kan openbaar en op eigen terrein door middel van de carport.
Kortom een ruime en praktisch ingedeelde woning op een rustige plek in Nijmegen. Een bezichtiging geeft het beste beeld van de mogelijkheden. Neem gerust contact op om een afspraak in te plannen.
waar
De woning is gelegen in de wijk Meijhorst, aan een rustige en overzichtelijke straat met veel groen. In de directe omgeving bevinden zich speelplekken, wandelroutes en plantsoenen. Basisscholen, buurtwinkels en openbaar vervoer liggen op korte afstand. De wijk is ruim opgezet en wordt voornamelijk bewoond door gezinnen, wat zorgt voor een prettige en rustige woonomgeving. Uitvalswegen richting Nijmegen en omliggende plaatsen zijn goed bereikbaar. Ook sportvoorzieningen, recreatiegebieden en het centrum van Nijmegen zijn eenvoudig te bereiken.
Kenmerken:
- Woonoppervlakte circa 129 m²
- Perceeloppervlakte circa 139 m²
- Inhoud circa 424 m³
- Bouwjaar 1975
- Energielabel C met einddatum 12 januari 2036.
- Verwarming en warm water via een Atag cv ketel uit 2023 in eigendom.
Begane grond
Via de hal komen we de woning binnen. Hier bevinden zich het toilet, de meterkast en toegang tot de woonkamer. De woonkamer heeft een oppervlakte van circa 37 m² en biedt voldoende ruimte voor zowel een zitgedeelte als een eethoek. Door de indeling is de ruimte goed te benutten en is er prettig daglicht aanwezig. Vanuit de woonkamer is de achtertuin bereikbaar.
De achtertuin is gelegen op het zuiden en heeft een oppervlakte van circa 44 m². Door de ligging is er veel zon gedurende de dag. De tuin is bereikbaar via een achterom en beschikt aan de voorzijde over een vrijstaande stenen berging van circa 6 m², ideaal voor fietsen en extra opslag.
Eerste verdieping
Op de eerste verdieping komen we uit op de overloop die toegang biedt tot 2 slaapkamers en de badkamer. De slaapkamers hebben een prettig formaat en zijn functioneel ingedeeld. De slaapkamer aan de achterzijde heeft toegang tot het balkon, gelegen op het zuiden. De badkamer is compleet uitgevoerd met een douche, ligbad, wastafel en toilet.
Tweede verdieping
Via een vaste trap bereiken we de tweede verdieping. Hier bevindt zich de derde slaapkamer. Daarnaast is er extra bergruimte aanwezig, waardoor deze verdieping ook praktisch is voor opslag of een werkplek aan huis.
Buitenruimte
Aan de voorzijde is er een voortuin. Parkeren kan openbaar en op eigen terrein door middel van de carport.
Kortom een ruime en praktisch ingedeelde woning op een rustige plek in Nijmegen. Een bezichtiging geeft het beste beeld van de mogelijkheden. Neem gerust contact op om een afspraak in te plannen.
powered by Friva | Lees ons Privacybeleid






































