NIJMEGEN
€ 819.000
Wasbeerstraat 9
6 Kamers
2 Badkamers
4 Slaapkamers
183 m²
A++++
Achtertuin
Bezichtiging aanvragen
Beschrijving
Luxe (nieuwbouw)woning met zeeën van ruimte – Hazenkamp
Wasbeerstraat 9 (bouwnummer 73) is een moderne en zeer royale tussenwoning met ca. 183 m² woonoppervlak, verdeeld over vier volwaardige woonlagen. De woning is momenteel in aanbouw en wordt naar verwachting medio 2026 opgeleverd. Voorlopig energielabel A++++.
Meld je nu aan voor onze unieke inloopmiddagen en laat je informeren over de afwerking, mogelijkheden en planning. Er staat een uitgebreid team klaar om je mee te nemen in de wondere wereld van nieuwbouw én de mogelijkheden voor het financieren van deze woning.
Een unieke kans om nieuw te wonen op een toplocatie in de geliefde wijk Hazenkamp, mét mogelijkheden om deels de afwerking naar eigen wens vorm te geven.
Nieuwbouwproject Hazenpark combineert het comfort van stads wonen met rust en groen. Je woont hier duurzaam, centraal en op fietsafstand van het centrum van Nijmegen. Het groene binnen gebied vormt het kloppend hart van de buurt.
De Urban villa biedt een stoere, industriële uitstraling met veel licht dankzij grote raampartijen. Het groendak zorgt voor extra comfort en draagt bij aan biodiversiteit. Met vier woonlagen, vier slaapkamers en twee badkamers is ruimte hier geen luxe, maar standaard.
Indeling (globaal):
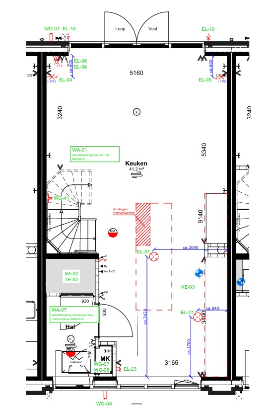
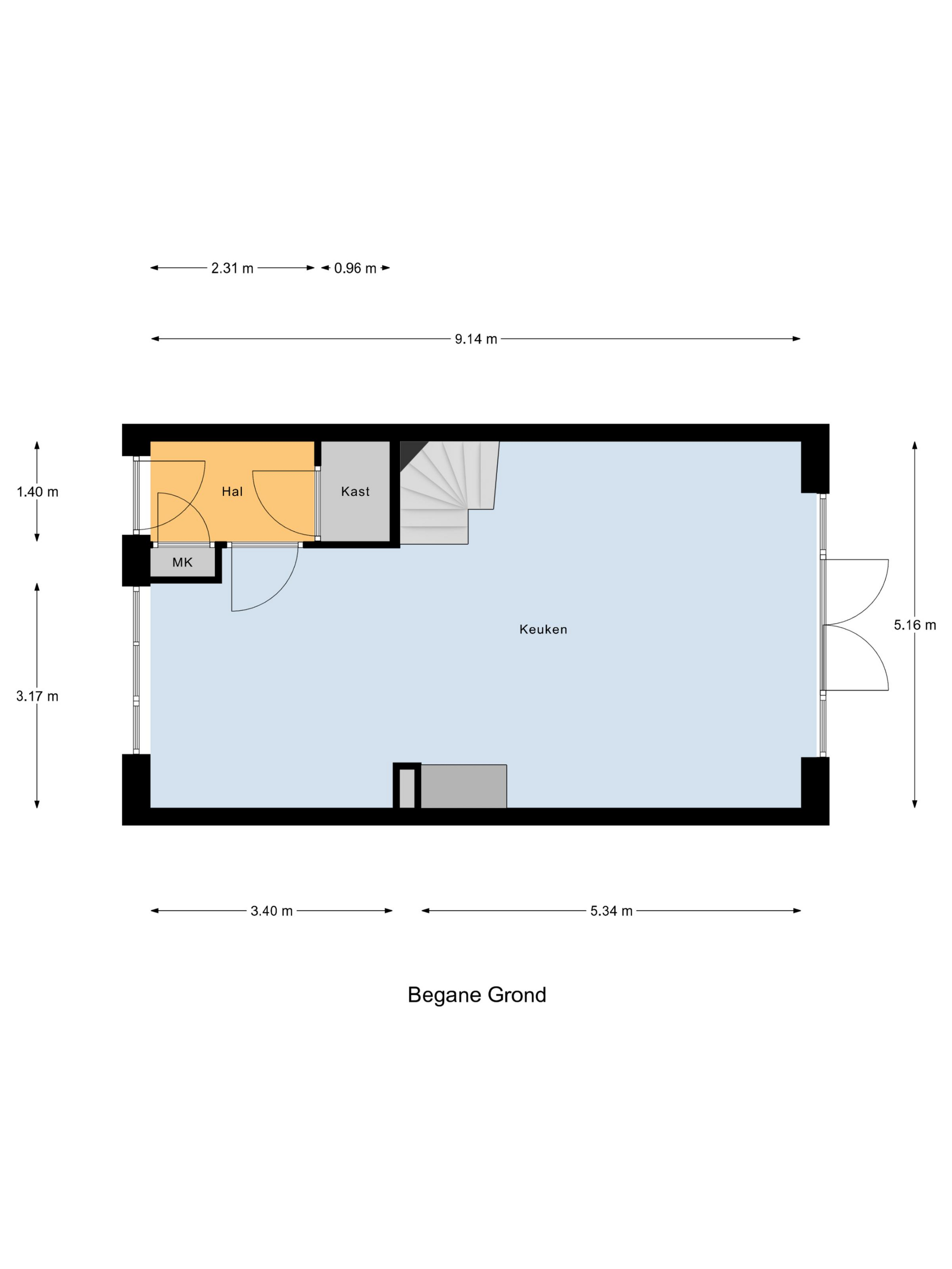
Begane grond met hal, toilet, keuken aan de voorzijde en een royale leefruimte aan de tuinzijde.
Eerste verdieping als woonverdieping met vide en grote raampartij.
Tweede verdieping met twee slaapkamers en moderne badkamer.
Derde verdieping met twee woning brede slaapkamers, tweede badkamer en technische ruimte.
Kenmerken:
• Woonoppervlak ca. 183 m²
• Vier woonlagen
• Vier slaapkamers
• Twee badkamers
• Tuin op het zuidwesten
• Energielabel A++++ (voorlopig)
• Vloerverwarming en -koeling in de gehele woning
• Zonnepanelen inbegrepen
De woning is voorzien van de volgende aanvullende opties:
• Voorbereiding voor zonwering aan de achtergevel op alle verdiepingen
• Voorbereiding voor een waterontharder in de trapkast
• Wandafwerking begane grond en eerste, tweede en derde verdieping, inclusief hal en overloop, voorzien van glad 100% glasvlies en gesausd in RAL 9016
• Diverse extra elektrapunten
De woning wordt kosten koper verkocht. De koper neemt deels de lopende aannemingsovereenkomst over. Meer informatie over afwerking, planning en mogelijkheden ontvang je tijdens onze inloopmiddagen.
Projectnotaris van toepassing: Bruggink en Van Beek Notarissen te Wijchen.
Nieuw wonen. Ruim leven. Hazenpark...
Wasbeerstraat 9 (bouwnummer 73) is een moderne en zeer royale tussenwoning met ca. 183 m² woonoppervlak, verdeeld over vier volwaardige woonlagen. De woning is momenteel in aanbouw en wordt naar verwachting medio 2026 opgeleverd. Voorlopig energielabel A++++.
Meld je nu aan voor onze unieke inloopmiddagen en laat je informeren over de afwerking, mogelijkheden en planning. Er staat een uitgebreid team klaar om je mee te nemen in de wondere wereld van nieuwbouw én de mogelijkheden voor het financieren van deze woning.
Een unieke kans om nieuw te wonen op een toplocatie in de geliefde wijk Hazenkamp, mét mogelijkheden om deels de afwerking naar eigen wens vorm te geven.
Nieuwbouwproject Hazenpark combineert het comfort van stads wonen met rust en groen. Je woont hier duurzaam, centraal en op fietsafstand van het centrum van Nijmegen. Het groene binnen gebied vormt het kloppend hart van de buurt.
De Urban villa biedt een stoere, industriële uitstraling met veel licht dankzij grote raampartijen. Het groendak zorgt voor extra comfort en draagt bij aan biodiversiteit. Met vier woonlagen, vier slaapkamers en twee badkamers is ruimte hier geen luxe, maar standaard.
Indeling (globaal):
Begane grond met hal, toilet, keuken aan de voorzijde en een royale leefruimte aan de tuinzijde.
Eerste verdieping als woonverdieping met vide en grote raampartij.
Tweede verdieping met twee slaapkamers en moderne badkamer.
Derde verdieping met twee woning brede slaapkamers, tweede badkamer en technische ruimte.
Kenmerken:
• Woonoppervlak ca. 183 m²
• Vier woonlagen
• Vier slaapkamers
• Twee badkamers
• Tuin op het zuidwesten
• Energielabel A++++ (voorlopig)
• Vloerverwarming en -koeling in de gehele woning
• Zonnepanelen inbegrepen
De woning is voorzien van de volgende aanvullende opties:
• Voorbereiding voor zonwering aan de achtergevel op alle verdiepingen
• Voorbereiding voor een waterontharder in de trapkast
• Wandafwerking begane grond en eerste, tweede en derde verdieping, inclusief hal en overloop, voorzien van glad 100% glasvlies en gesausd in RAL 9016
• Diverse extra elektrapunten
De woning wordt kosten koper verkocht. De koper neemt deels de lopende aannemingsovereenkomst over. Meer informatie over afwerking, planning en mogelijkheden ontvang je tijdens onze inloopmiddagen.
Projectnotaris van toepassing: Bruggink en Van Beek Notarissen te Wijchen.
Nieuw wonen. Ruim leven. Hazenpark...
Beschrijving
Luxe (nieuwbouw)woning met zeeën van ruimte – Hazenkamp
Wasbeerstraat 9 (bouwnummer 73) is een moderne en zeer royale tussenwoning met ca. 183 m² woonoppervlak, verdeeld over vier volwaardige woonlagen. De woning is momenteel in aanbouw en wordt naar verwachting medio 2026 opgeleverd. Voorlopig energielabel A++++.
Meld je nu aan voor onze unieke inloopmiddagen en laat je informeren over de afwerking, mogelijkheden en planning. Er staat een uitgebreid team klaar om je mee te nemen in de wondere wereld van nieuwbouw én de mogelijkheden voor het financieren van deze woning.
Een unieke kans om nieuw te wonen op een toplocatie in de geliefde wijk Hazenkamp, mét mogelijkheden om deels de afwerking naar eigen wens vorm te geven.
Nieuwbouwproject Hazenpark combineert het comfort van stads wonen met rust en groen. Je woont hier duurzaam, centraal en op fietsafstand van het centrum van Nijmegen. Het groene binnen gebied vormt het kloppend hart van de buurt.
De Urban villa biedt een stoere, industriële uitstraling met veel licht dankzij grote raampartijen. Het groendak zorgt voor extra comfort en draagt bij aan biodiversiteit. Met vier woonlagen, vier slaapkamers en twee badkamers is ruimte hier geen luxe, maar standaard.
Indeling (globaal):
Begane grond met hal, toilet, keuken aan de voorzijde en een royale leefruimte aan de tuinzijde.
Eerste verdieping als woonverdieping met vide en grote raampartij.
Tweede verdieping met twee slaapkamers en moderne badkamer.
Derde verdieping met twee woning brede slaapkamers, tweede badkamer en technische ruimte.
Kenmerken:
• Woonoppervlak ca. 183 m²
• Vier woonlagen
• Vier slaapkamers
• Twee badkamers
• Tuin op het zuidwesten
• Energielabel A++++ (voorlopig)
• Vloerverwarming en -koeling in de gehele woning
• Zonnepanelen inbegrepen
De woning is voorzien van de volgende aanvullende opties:
• Voorbereiding voor zonwering aan de achtergevel op alle verdiepingen
• Voorbereiding voor een waterontharder in de trapkast
• Wandafwerking begane grond en eerste, tweede en derde verdieping, inclusief hal en overloop, voorzien van glad 100% glasvlies en gesausd in RAL 9016
• Diverse extra elektrapunten
De woning wordt kosten koper verkocht. De koper neemt deels de lopende aannemingsovereenkomst over. Meer informatie over afwerking, planning en mogelijkheden ontvang je tijdens onze inloopmiddagen.
Projectnotaris van toepassing: Bruggink en Van Beek Notarissen te Wijchen.
Nieuw wonen. Ruim leven. Hazenpark...
Wasbeerstraat 9 (bouwnummer 73) is een moderne en zeer royale tussenwoning met ca. 183 m² woonoppervlak, verdeeld over vier volwaardige woonlagen. De woning is momenteel in aanbouw en wordt naar verwachting medio 2026 opgeleverd. Voorlopig energielabel A++++.
Meld je nu aan voor onze unieke inloopmiddagen en laat je informeren over de afwerking, mogelijkheden en planning. Er staat een uitgebreid team klaar om je mee te nemen in de wondere wereld van nieuwbouw én de mogelijkheden voor het financieren van deze woning.
Een unieke kans om nieuw te wonen op een toplocatie in de geliefde wijk Hazenkamp, mét mogelijkheden om deels de afwerking naar eigen wens vorm te geven.
Nieuwbouwproject Hazenpark combineert het comfort van stads wonen met rust en groen. Je woont hier duurzaam, centraal en op fietsafstand van het centrum van Nijmegen. Het groene binnen gebied vormt het kloppend hart van de buurt.
De Urban villa biedt een stoere, industriële uitstraling met veel licht dankzij grote raampartijen. Het groendak zorgt voor extra comfort en draagt bij aan biodiversiteit. Met vier woonlagen, vier slaapkamers en twee badkamers is ruimte hier geen luxe, maar standaard.
Indeling (globaal):
Begane grond met hal, toilet, keuken aan de voorzijde en een royale leefruimte aan de tuinzijde.
Eerste verdieping als woonverdieping met vide en grote raampartij.
Tweede verdieping met twee slaapkamers en moderne badkamer.
Derde verdieping met twee woning brede slaapkamers, tweede badkamer en technische ruimte.
Kenmerken:
• Woonoppervlak ca. 183 m²
• Vier woonlagen
• Vier slaapkamers
• Twee badkamers
• Tuin op het zuidwesten
• Energielabel A++++ (voorlopig)
• Vloerverwarming en -koeling in de gehele woning
• Zonnepanelen inbegrepen
De woning is voorzien van de volgende aanvullende opties:
• Voorbereiding voor zonwering aan de achtergevel op alle verdiepingen
• Voorbereiding voor een waterontharder in de trapkast
• Wandafwerking begane grond en eerste, tweede en derde verdieping, inclusief hal en overloop, voorzien van glad 100% glasvlies en gesausd in RAL 9016
• Diverse extra elektrapunten
De woning wordt kosten koper verkocht. De koper neemt deels de lopende aannemingsovereenkomst over. Meer informatie over afwerking, planning en mogelijkheden ontvang je tijdens onze inloopmiddagen.
Projectnotaris van toepassing: Bruggink en Van Beek Notarissen te Wijchen.
Nieuw wonen. Ruim leven. Hazenpark...
powered by Friva | Lees ons Privacybeleid











